DR.HARISHRAN
Project Details
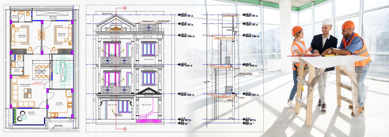
1. AREA SIZE : 26'3*50 = 144SQ. FEET
2. LOCATION : VAISHALI NAGAR, JAIPUR
3. FACING : SOUTH
4. FLOOR : BASEMENT, GROUND FLOOR, FIRST FLOOR
5. TYPE OF PROJECT : RESIDENTIAL
1. AREA SIZE : 26'3*50 = 144SQ. FEET
2. LOCATION : VAISHALI NAGAR, JAIPUR
3. FACING : SOUTH
4. FLOOR : BASEMENT, GROUND FLOOR, FIRST FLOOR
5. TYPE OF PROJECT : RESIDENTIAL